Ledigt butikslejemål
Vi har nu fornøjelsen af at tilbyde et helt nyt og moderne erhvervslokale på 240 m² i en af Skjern mest attraktive områder – midt i centrum på Østergade, lige overfor SuperBrugsen.
Lokalet er en del af et nyopført bygningskompleks, som sammen med blandt andet vinforretning Wine N’Fun og SuperBrugsens udvidede parkeringsfaciliteter skaber et spændende og indbydende byrum. Området summer allerede af liv og aktivitet – og der kommer endnu mere.
Du bliver nabo til den nye børnetandlæge for hele Ringkøbing-Skjern Kommune samt en tandlægeklinik på 1. sal, hvilket sikrer et konstant og naturligt kundeflow i området.
Lokalet er ideelt til detailhandel, showroom, klinik eller andre former for erhverv – og du får stor medindflydelse på indretningen, så det kan tilpasses netop din virksomheds behov og profil.
Østergade 15
6900 Skjern
Placeringen er direkte i centrum med gode parkeringsforhold tæt på.
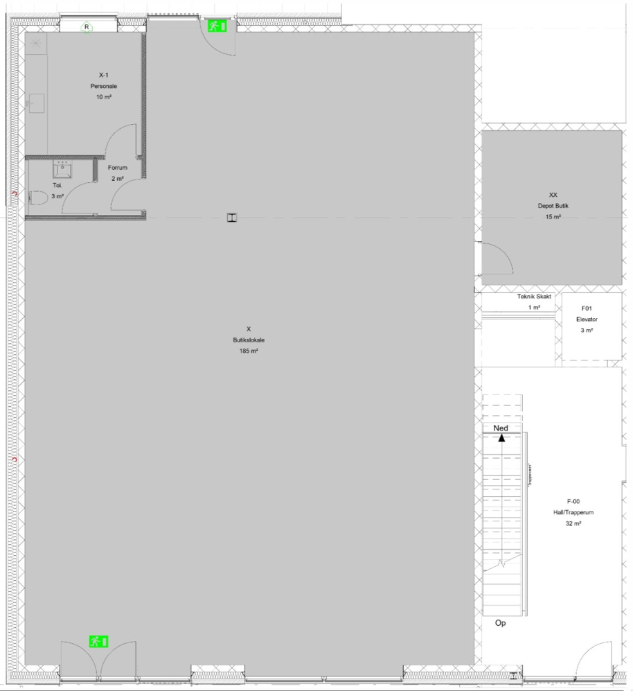
240 m2 - med mulighed for individuel indretning.
Se plantegning herunder for specifikke lejemål.
Kontakt os i dag - og bliv en del af Skjern nye erhvervsmiljø.
Telefon: 51 31 49 49
E-mail: lars@larsenudlejning.dk
